| MISE A JOUR : | 22/01/2026 |
| REFERENCE : | 028_1603 |
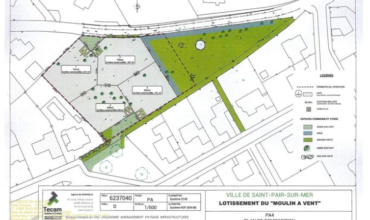
| SURFACE : | 755 m² |
| CHAUFFAGE : | Autres |
| Les informations sur les risques auxquels ce bien est exposé sont disponible sur le site Géorisques : www.georisques.gouv.fr | |
| |
En vente immo-interactif, A 500m du coeur de ville, terrain ? b?tir viabilis? de 755m? avec vue mer. Dans un bel environnement, vous pourrez concevoir la maison de vos r?ves de 200m? de plancher avec une jolie vue sous r?serve de respecter le r?glement et les contraintes architecturales.Conditions de la vente : le bien est pr?sent? en IMMO interactif ? la hausse sur le site immobilier.notaires.fr1?re offre possible: 264.656€ honoraires de n?gociation et frais publicit? inclus.Minimum du pas des offres : 5.000€D?but des offres : Mardi 13 janvier 2026 ? 14H00Fin des offres : Mercredi 14 janvier 2026 ? 14H00sur le site immobilier.notaires.frVISITES SUR RENDEZ VOUS :Contact: Service Immobilier : 02.33.50.01.20R?f: 028/1603 Les informations sur les risques auxquels ce bien est expos? sont disponibles sur le site G?orisques: www.georisques.gouv.fr

















































